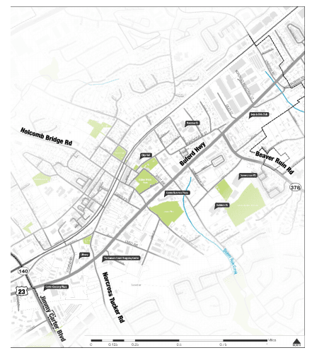
The City of Norcross is coordinating a Master Plan for strategic revitalization and redevelopment of the 1.85-mile long Buford Highway corridor within the City of Norcross. We are seeking citizens to serve on the Steering Committee, which will meet on Thursday, October 15th at 4:00 p.m. The meeting will be held virtually; the time commitment is expected to be two hours. There will be 12 members.
Interested persons should email bufordhighway@norcrossga.net with a brief description of their background and why they would like to serve on this committee.
The deadline for expressing interest is Friday, September 25.
